Les Abricotiers à Salins

Situé à Sion, à une altitude de 610 mètres, ce quartier bénéficie d'un ensoleillement optimal et se trouve à proximité de toutes les commodités. À seulement 6 minutes de l'hôpital de Sion, du centre-ville et de la sortie d'autoroute Sion/Est, son emplacement est idéal. Profitez d'une vue imprenable sur la ville de Sion et la vallée du Rhône.
Chaque appartement est équipé d'un emplacement dédié pour une colonne machine à laver et séchoir, offrant ainsi un confort optimal pour vos besoins de lessive. De plus, une cave est prévue et équipée d'une prise électrique pour accueillir un congélateur. Vous pourrez également profiter d'un grand balcon pour vos moments de détente en plein air.
Situation du projet
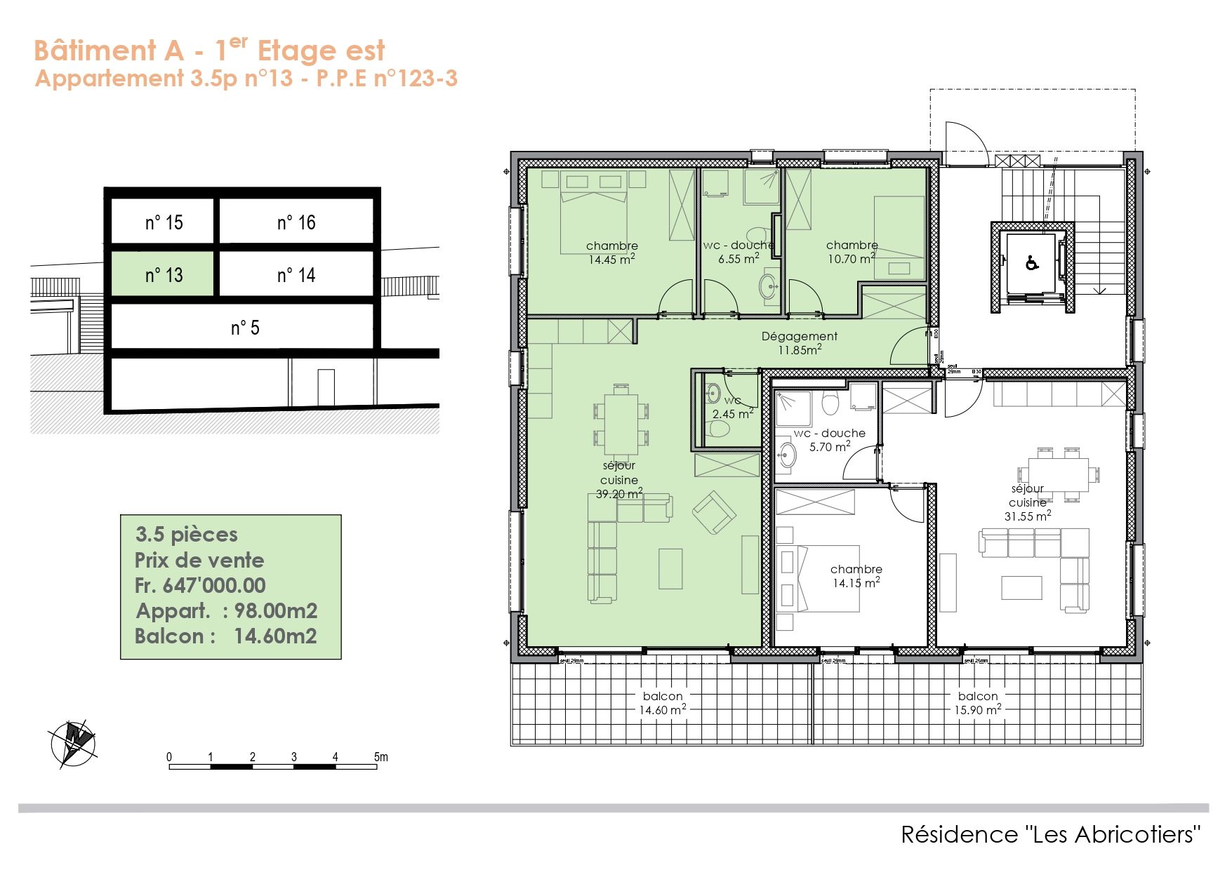
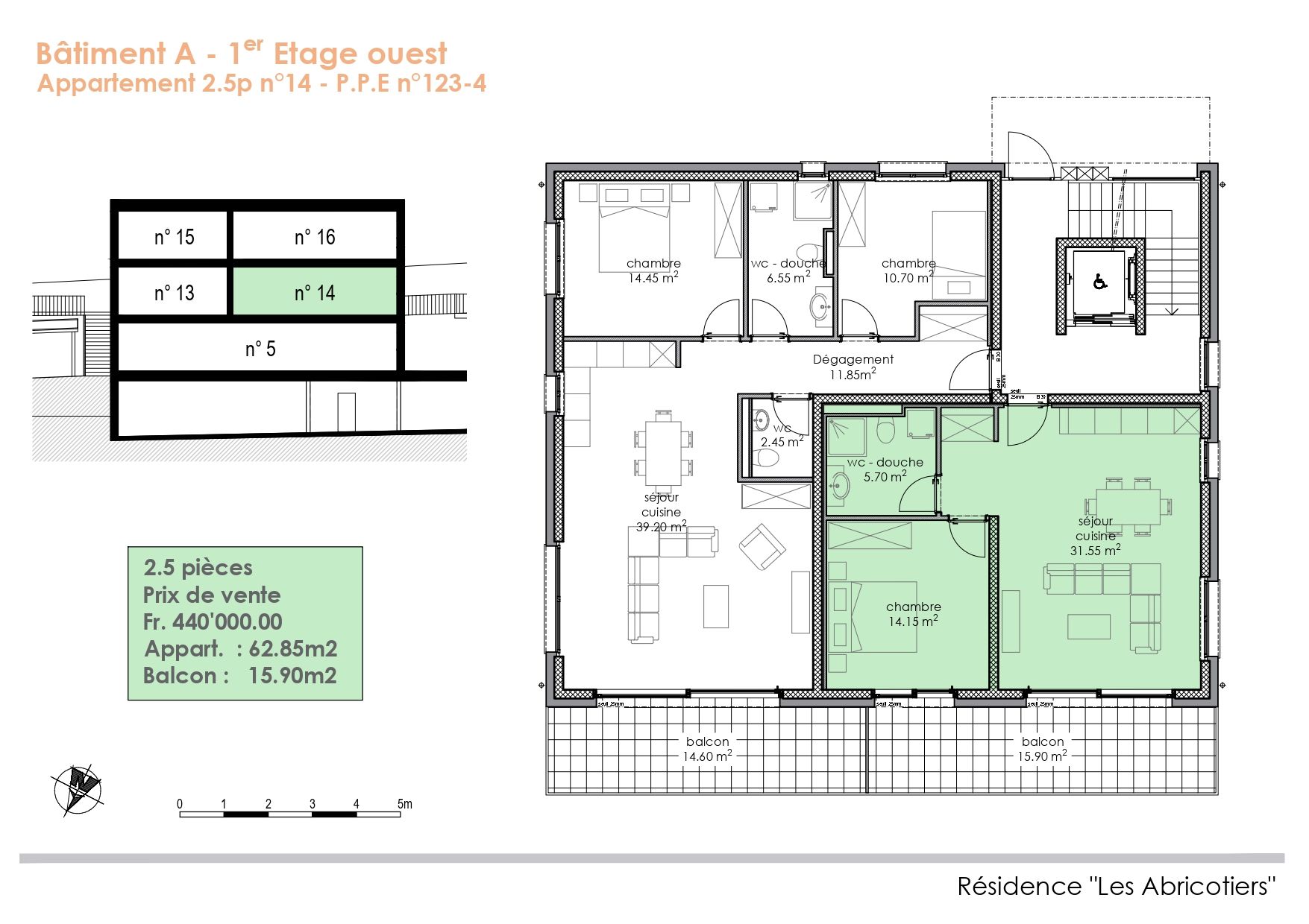
Les surfaces de vente PPE englobent la surface totale de l'appartement, incluant les murs extérieurs, les demi-murs entre les appartements ainsi que la cage d'escalier. Les balcons sont quant à eux comptés pour la moitié de leur surface. Ces indications sur les surfaces sont fournies à titre informatif et ne revêtent pas un caractère contractuel. Les données sont fournis à titre indicatif et peuvent faire l'objet de modifications pendant la construction.










